El certamen, organizado por la Corporación Cultural y financiado por el Consejo Nacional de la Cultura y las Artes a través del Fondart, buscó una propuesta de edificio que concentra los servicios públicos y las dependencias operativas de la Ilustre Municipalidad de Papudo. La intervención, en la manzana de la Plaza de Armas de Papudo, consolida la relación entre este espacio colectivo y el nuevo edificio, demarcando el destino cívico del centro urbano.
Patrocinado por el Colegio de Arquitectos y la AOA el concurso ya tiene sus ganadores:
– Primer lugar: PROYECTO KT5, $15.000.000
MATÍAS ZEGERS CELIS, Arquitecto responsable
JACINTA GONZÁLEZ RISOPATRÓN
NICOLÁS VIVAR MACHICAO.
Una plaza en un parque
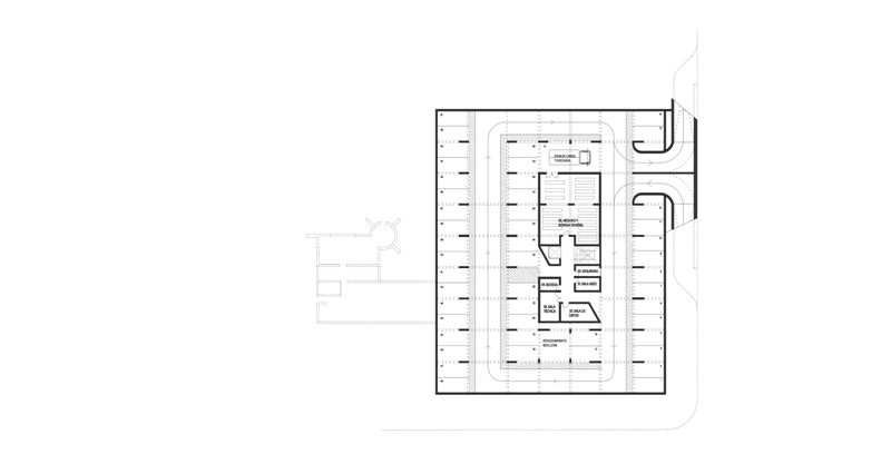
El edificio propuesto se extiende sobre los límites del área edificable para liberar el espacio central donde se acoge al edificio fundacional como elemento jerárquico en la distribución del conjunto. Los distanciamientos establecidos entre el edificio propuesto y el fundacional están determinados por los patios interiores que construyen el atrio como espacio de transición.
El emplazamiento del edificio construye dos espacios públicos; la gran plaza, un espacio cívico que articula el remate del parque con el edificio y el patio interior funcionando como una extensión informal del edificio público. El proyecto incorpora el parque generando traspasos desde los 4 lados, y los volúmenes emplazados para construir un marco visual hacia el noreste, así la plaza cívica puede consignar también como un acceso principal, constituyendo un espacio de carácter cívico inserto en el pulmón verde de la ciudad. Así el nuevo edificio se concibe como un detonador de nuevos actos, confluyendo entre el ejercicio cívico y la cotidianidad de la plaza.
– Segundo Premio: PROYECTO EG7, $8.000.000
FELIPE ALARCÓN CARREÑO, Arquitecto responsable
JAIME SEPÚLVEDA ARIAS
LUIS HERRERA TAPIA
ROBERTO OLEA CASTRO.
Compartiendo un lenguaje.
El edificio consistorial fundacional vino a consolidar, con su vocación pública y su ubicación jerárquica en la ciudad, una arquitectura con un lenguaje en común particular de una época incipiente de desarrollo en el balneario de Papudo. Dicho lenguaje podría sintetizarse básicamente en dos elementos de arquitectura que articulan la obra con la particularidad de su entorno: el zócalo y el balcón. El primero como pieza de contención que se encarga de dar un orden al solar y otorgar el plano horizontal que soporte el edificio y su relación con la topografía y morfología del lugar.
El nuevo edificio propuesto busca poner en valor al monumento y a su vez al resto de los edificios singulares de la ciudad, por medio de una propuesta que ubique a la pre-existencia en un rol predominante e incorpore su lenguaje de forma contemporánea.
– Tercer Premio: PROYECTO AE4, $4.000.000
JUAN FERNANDEZ CHADWICK, Arquitecto responsable
FELIPE FUENTES GUAJARDO
JORGE MAS ERRÁZURIZ
MARÍA VÁSQUEZ MEZA
CRISTÓBAL GARCÍA DE LA HUERTA ELUCHANS.
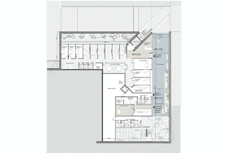
Edificio Consistorial como extensión de la plaza
El mayor potencial del encargo es el emplazamiento propuesto. En lugar de ubicarse en un lote rodeado de edificios, se trata de un edificio en medio del vacío urbano por excelencia, la plaza. El nuevo edificio respeta y refuerza esta condición del lugar. La propuesta es una oportunidad de extender y consolidar la plaza hacia el oriente, consolidando la cuadra.
Para lograr lo propuesto se plantea extender el trazado tradicional de la plaza. Se trata de caminos peatonales en el perímetro y diagonales hacia el centro de la manzana. Los volúmenes construidos se ubican en los espacios resultantes, de modo de no obstruir las vistas hacia el edificio patrimonial.
MENCIONES
– Primera Mención: PROYECTO AB6
AUGUSTO ANGELINI, Arquitecto responsable
SERGIO ALFARO MALATESTA
ÁLVARO ROJAS VIO.
– Segunda Mención: PROYECTO AC9
RODRIGO DUQUE MOTTA, Arquitecto responsable
PAULA LIVINGSTONE URETA
JAVIERA JADUE ZARHI.
El jurado del concurso fue conformado por:
- Andrés Mejías Arenas, SECPLAN Papudo, Representante de la Alcaldesa Rosa Prieto
 - Cristóbal Molina Baeza, Coordinador del área de arquitectura del CNCA
 - Pilar Urrejola Dittborn, Presidenta del Colegio de Arquitectos.
 - Carlos Alberto Urzúa Baeza, Representante AOA
 - Samuel Encina Varas, Representante comunidad de Papudo.
 - Mario Ferrada Aguilar, Presidente de ICOMOS Chile.
 - Teodoro Fernández Larrañaga, Premio Nacional de Arquitectura 2014.
 - Gonzalo Mardones, elegido como “Jurado Representante de los Concursantes”.
 
Todos los detalles del Concurso y los ganadores:
[gview file=»https://colegioarquitectos.com/noticias/wp-content/uploads/2015/11/Resultados-CECP_151126-Ganadores.docx»]
		  
	

































